For Those On A Budget: Minimalist One-Bedroom House
What are the criteria that people think of whenever they are buying a house?
Is it the size of their family?
It can also be their budget.
How about the location of the house?
There are a lot of reasons that can affect your buying power. However, if you are looking for a simple and minimalist looking home, this one-bedroom house will fit your taste.
This one story house features a contemporary style: It is a combination of a classic and a modern house. It has a gray tiled roofing design with an accent wall made of bricks.


There is also a mini garden in front of the house, which adds to the sophistication that it has.
One of the unique features of this house is the glass wall. Before you enter the house, you will see the glass wall, which reflects the living room and dining area. Not only does it help with the aesthetic, it also gives the whole house an illusion that the floor space is bigger.
The interior of this one-bedroom house has a refreshing and minimalist finish: The walls are painted in white, the floors are covered with cream tiles, and the ceilings are painted white.


The kitchen is very spacious, even for a small house. It has l-shaped counters with several under the sink cabinets to store your kitchen utensils and pantry staples and enough space for a gas stove, a large refrigerator, and kitchen tables.
There is also a door from the living room which will lead you to the area at the back. Unlike other house, it is designed as a terrace.
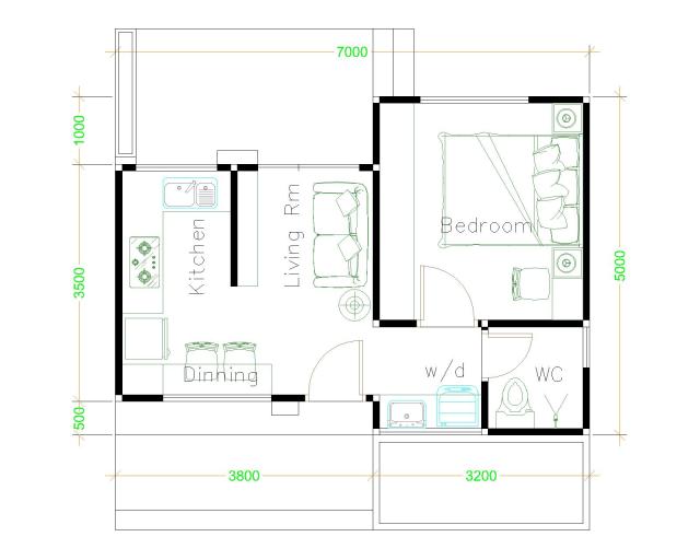
Other than the living room, dining area, kitchen, there are also one bedroom, one bathroom, and even a washing area. The bathrooms feature a lavatory, a toilet bowl, as well as a shower area. You can install a glass wall to separate the wet from the dry area.


Check out the floor plan of this one-bedroom house here:


Overall, this one-bedroom house comes with: One bedroom, one bathroom, a kitchen, a living room, a dining hall, and a washing area in a 5 by 7 square meters living space.
Reference: SamPhoas Plan

Be the first to comment