Lately, we have been posting bungalow designs because they are timeless and they never go outmoded. Homeowners always love bungalows for their easy maintenance and flexibility. But today we will be featuring a double-storey house. There are still many prospective homeowners out there who prefer a double-storey especially for those who love a large space for their stuffs and guests and for large families with more than five members.
So, let’s check this double-storey house we have picked for you today.

It is a modern design that’s why you don’t see many ornaments and fabulous and intricate designs on its exterior. Like what others say, it looks like a rectangle that stands with a roof. Well, this is really what modern design is all about – function over form, which means that it is more important to build a house and use it for its purpose rather than for its beauty.

This is the large family room in the ground floor. As a modern design, it uses a lot of glass and steel, which makes the appearance really clean and the spaces are functional.

This is the dining area and the kitchen. As you can see, the paint that is used mainly on its exterior and interior is white. This color exudes cleanliness and makes the interior look bright and cheerful. You can always accent or complement it with a darker color like blue, gray, dark brown or orange. It depends on your preference.
But how much does it cost to build this house? Well, if you want to build exactly like you see in the photos, you need a budget of at least US$300,000 or 15 million pesos to start with. That amount will complete the structure and very rough finish. To bring to a semi-finished state, you need to dole out US$360,000. For its finished state, you can add another 10,000-20,000 depending on what kind of finishing you want.
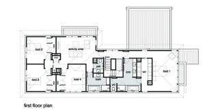
Product Specifications:
- two-storey house
- 4 bedrooms
- 3 bathrooms
- 1 family room
- 1 living room
- 1 activity area
- 1 study room
- laundry area
- lower and upper porches
- kitchen and dining
- garage
- Budget: USD 300,000-360,000 or Php 15-18M


You may want to check our other websites, as well. You can click on the following hyperlinks and you will be redirected to the websites. There are many designs for you to choose from. Each design has its own unique features where you may get ideas from to build your own. If you like the design, please don’t forget to share on your wall for others to see. Sit back and enjoy. Visit us again soon. Thank you!
Source: Houseplans

Be the first to comment